Private Development in Central Doubleview – 7 Premium Lots Selling Now
A rare opportunity to secure land and build your THE home or investment in one of Perth’s most desirable suburbs.
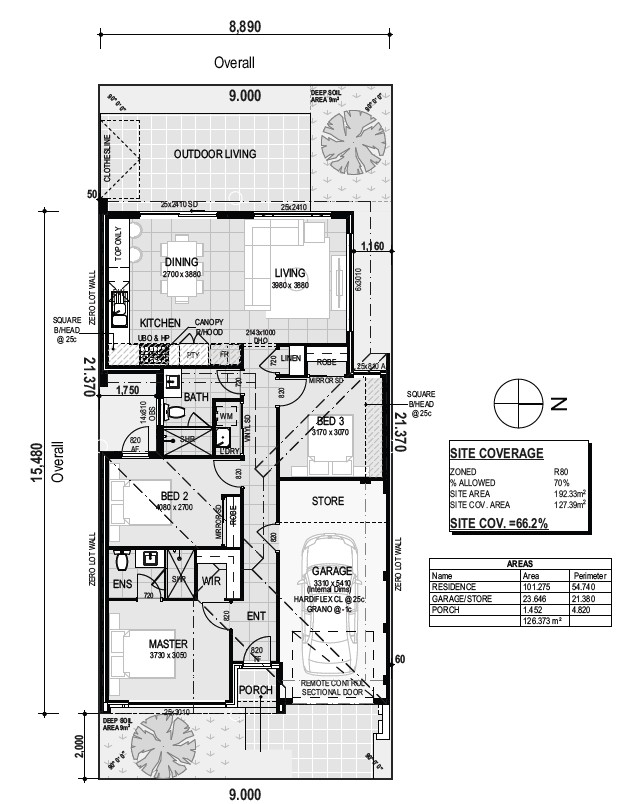
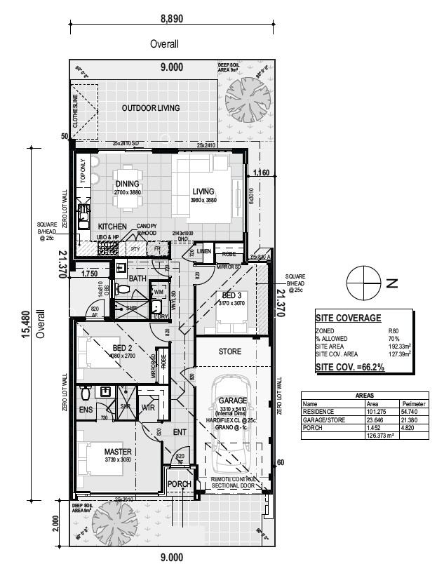
LAND + CUSTOM HOME DESIGN
Each lot includes a proposed floorplan that can be tailored to your needs. Full turnkey packages available – no hidden costs.
Inspections by Appointment Only
Phone: +61 415 105 454
WhatsApp: +61 415 105 454 (Local and Overseas Buyers Welcome)
What’s Included:
Upgrade to Double Glazing for just $4,990 (Valued at $35,000)
Daikin Reverse Cycle Air Conditioning
Provisional Site Works
31c Ceilings to Living Areas, 28c to Bedrooms
Full Internal Paint Package
Vinyl Plank Flooring to Living Areas, Carpet to Bedrooms
Roller Blinds Throughout
20 LED Downlights
Redink Homes – Premium Inclusions:
Personalised Interior Design Consultation or streamlined selections for investors
COLORBOND Roof, Gutters, Fascia and Downpipes
Acrylic Render to Front Elevation – Two Colours
Choice of Three Cornice Styles
20mm Silica-Free Stone Benchtops to Kitchen, Bathroom and Laundry
300mm Breakfast Bar Overhang
Undermount Stainless Steel Sink with Chrome or Matte Black Tapware
900mm Westinghouse Kitchen Appliances
Hobless Showers with Reflux Valve (if required)
Semi-Frameless Shower Screens with Pivot Doors
Modern Light Switches – White or Grey
Why Build Now:
Perth’s property market is highly competitive with low stock and rising demand
Building is more affordable in many suburbs compared to established homes
Redink Homes, part of the Scott Park Group and backed by Sumitomo Forestry Australia, offers strength, stability and long-term peace of mind
Whether you’re a first homebuyer, upsizer, downsizer or investor, we offer flexible design solutions to suit your lifestyle and goals.
Your Home, Your Choice.
Terms and conditions apply – For full details visit: https://shorturl.at/Zw3z9


